マナー白鳥の物件情報・売買仲介はフロンティア不動産

【札幌不動産物件情報】
不動産売買

011-520-2103
電話受付/9:00~20:00 定休日/年末年始

札幌市 マンション・戸建・土地マナー白鳥

北海道札幌市中央区南一条西1丁目の中古マンション情報はフロンティア不動産

〔物件ID〕 0000064896
  • 中古マンション
1,500 万円
所在地 北海道札幌市中央区南一条西1丁目
交通 札幌市営南北線「大通」駅 徒歩2分
札幌市営東西線「大通」駅徒歩2分
札幌市営東豊線「大通」駅徒歩2分
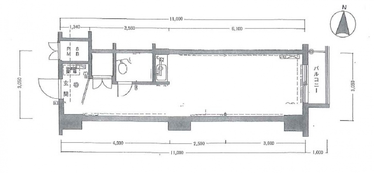
専有面積 33.55m2 (10.14坪)
間取り ワンルーム
築年月 1981年05月(昭和56年05月)
所在階/階数 6 階 / 13 階
  • 即入居可
  • オーナーチェンジ
  • エレベーター
マナー白鳥の物件写真
マナー白鳥のMAP・周辺環境
マナー白鳥の物件概要
所在地 北海道札幌市中央区南一条西1丁目
交通 札幌市営南北線「大通」駅 徒歩2分
札幌市営東西線「大通」駅徒歩2分
札幌市営東豊線「大通」駅徒歩2分
価格 1,500万円
小学校区---中学校区---
専有面積 33.55m2(10.14坪) 間取り ワンルーム
バルコニー面積 2.40m2 バルコニー向き ---
その他面積 ---
構造 SRC 所在階/階建 6階/13階
築年月 1981年05月(昭和56年05月) 総戸数 83戸
土地権利 所有権 用途地域 商業
管理会社 株式会社 日動
管理形態 管理会社に全部委託 管理員 日勤
管理費 9,770円 修繕積立金 4,104円
駐車場 --- 駐車場料金 ---
その他使用料 ---
現況 賃貸中 引渡 相談
取引態様 仲介 国土法届出 ---
設備 ---
コメント ---
更新日 2026年05月26日 次回更新予定日 2026年06月09日
ローンシミュレーション
自己資金 万円
※別途、諸費用が必要です。
ローン借入額 万円
内ボーナス時支払い 万円
※ボーナス返済月の加算額ではありません。
※お借入れ予定額の50%以下の金額をご入力ください。
金利
返済年数
  • 月々(毎月返済額)
  • 0
  • ボーナス(ボーナス時加算額)
  • 0

物件情報と現況に差異がある場合、現況を優先します。
掲載物件は売却済み、売却中止、価格変更となる場合がありますので、予めご了承ください。
仲介物件には所定の仲介手数料(消費税含む)が必要です。

フロンティア不動産株式会社
会社名 フロンティア不動産株式会社
所在地 〒064-0809
札幌市中央区南9条西1丁目1番15号
財界さっぽろビル1階
交通 地下鉄)南北線『中島公園』駅
TEL 011-520-2103
FAX 011-520-2105
ホームページHP https://estate.mansion-frontier.com/
メールアドレスE-MAIL info@frontier2103.co.jp
免許番号 北海道知事免許 石狩(3)7898号
営業時間 9:00~20:00
定休日 年末年始
物件を探す ×
物件種別
エリア
価格
建物面積
土地面積
専有面積
間取り
駅徒歩
築年数
こだわり条件
無料会員登録で非公開物件をご覧いただけます!
会員登録で
物件数が大幅アップ!

公開物件 156

公開物件+
非公開物件
4,620

現在の会員数68

  • 会員登録は無料!
  • 会員専用マイページを作成!
  • 希望条件に合う新着・価格変更物件をメール配信!
  • 非公開物件が閲覧可能!
  • 他社にはない特別限定物件のご紹介チャンスあり!